Completely redone in 2016!!! New Kitchen, granite counter top, new stainless steel appliances, 2018 Washer, neutral large floor tiles, new carpet upstairs, new bathrooms, new interior doors and frames, impact sliders, new breaker box, newer Water heater, new AC, new fence, fresh paint in and out and more!! Plus FPL power not Lake Worth Utilities - What's not to love!!

Community Specialist




John Abdelsayed
561-900-5200
john@trendsrealty.com



Property Address2836 Kirk Road
CommunityKIRKWOOD TOWNHOMES AS
Property TypeTownhouse
Price$ 160,000
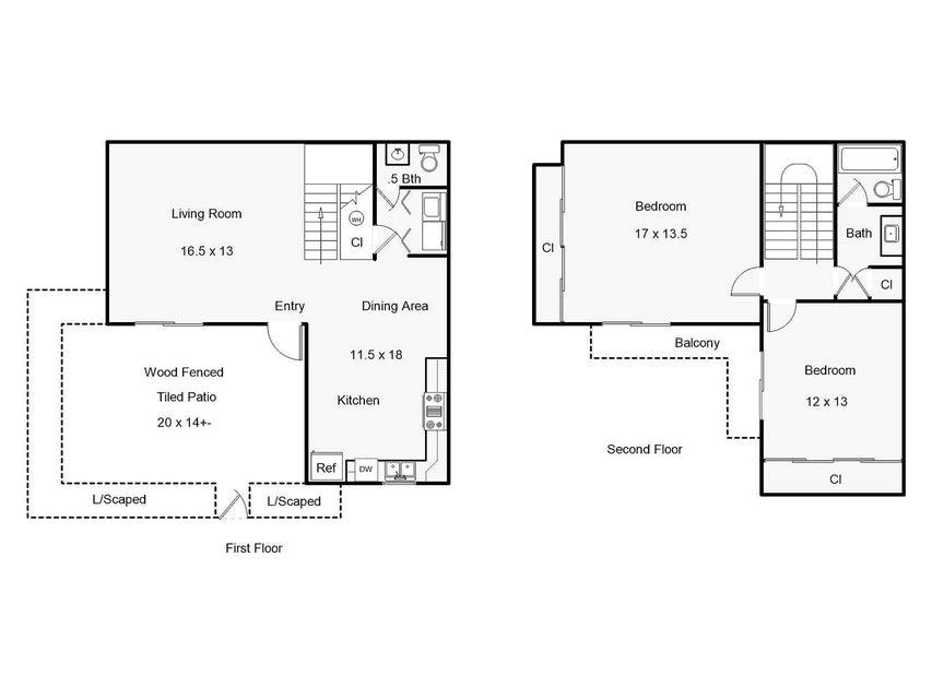
Bedrooms2
Full Bath1
Half Bath1
Living sqft1,264
Total sqft1,264
Year Built1980
Total Floors2
Total Units In Complex0
HOA fee230
Pets Allowed
Elementary School
Middle SchoolPalm Springs
High School
Courtesy OfLAER Realty Partners Bowen/WPB