LOCATION LOCATION LOCATION - Incredible Direct Oceanfront 3 Bedroom - 3 Bath unit located on the Southeast Corner of the North Building. It offers an over sized wrap-around terrace with stunning Ocean, Pool & Intracoastal views. Inside, you'll find exquisite taste and beautiful decor. The Enclave is one of Palm Beaches premier luxury buildings and offers the finest amenities and service including a new fitness center and a new resort style pool. There is a 24 Hour manned Gatehouse and 24/7 Doormen - 2 Car Garage Parking & Storage

Community Specialist




John Abdelsayed
561-900-5200
john@trendsrealty.com



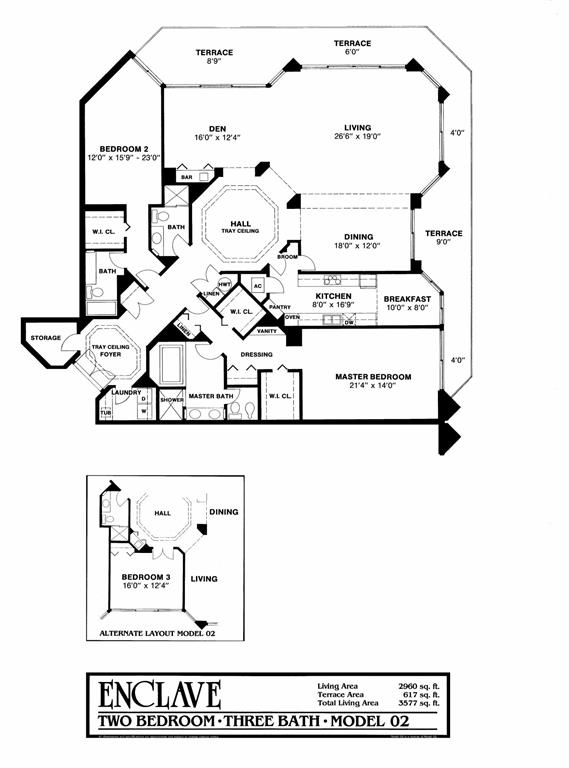
Property Address3170 S Ocean Boulevard 402 N
CommunityENCLAVE OF PALM BEACH CON
Property TypeCondominium
Price$ 2,295,000
Bedrooms3
Full Bath3
Half Bath0
Living sqft2,950
Total sqft3,577
Year Built1985
Total Floors7
Total Units In Complex0
HOA fee2,297
Pets Allowed
Elementary School
Middle School
High School
Courtesy OfScott Gordon Realty Associates